Tủ đông tiếp xúc là gì? Tủ cấp đông tiếp xúc
Tủ đông tiếp xúc là gì? Nguyên lý làm việc của tủ đông tiếp xúc như thế nào? Cùng Yongsung tìm hiểu ngay!
Trong các nhà máy chế biến thực phẩm, đặc biệt là trong ngành sản xuất hải sản và thịt, tủ đông tiếp xúc đóng vai trò cực kỳ quan trọng trong việc bảo quản nguyên liệu. Vậy tủ đông tiếp xúc là gì? Hãy cùng khám phá chi tiết về thiết bị này qua bài viết dưới đây nhé!
Tủ đông tiếp xúc là gì?
Tủ đông tiếp xúc là một thiết bị chuyên dụng giúp hạ nhiệt độ của sản phẩm xuống mức thấp để bảo quản trong thời gian ngắn. Đây là một trong những loại tủ cấp đông phổ biến, thường được sử dụng để bảo quản thực phẩm dạng khối (block). Tủ đông tiếp xúc giúp duy trì chất lượng và độ tươi ngon của thực phẩm trong quá trình bảo quản.
Nguyên lý làm việc của tủ đông tiếp xúc
Quá trình làm việc của tủ đông tiếp xúc được thực hiện qua các bước sau:
Chuẩn Bị Sản Phẩm:
Sản phẩm được đặt vào khay chứa và đưa vào bên trong tủ đông.
Ép Tấm Cấp Đông:
Hệ thống ben thủy lực sẽ ép các tấm cấp đông lạnh xuống, tạo ra sự tiếp xúc trực tiếp với bề mặt của sản phẩm.
Truyền Nhiệt Độ Lạnh:
Nhiệt độ lạnh từ các tấm cấp đông sẽ truyền trực tiếp vào sản phẩm, giúp quá trình đông lạnh diễn ra nhanh chóng và đồng đều.
Điều Khiển Nhiệt Độ:
Hệ thống điều khiển sẽ theo dõi và điều chỉnh nhiệt độ cũng như thời gian cấp đông phù hợp với từng loại sản phẩm.
Hoàn Tất Quá Trình:
Sau khi quá trình cấp đông hoàn tất, sản phẩm sẽ được lấy ra khỏi tủ và tiếp tục được bảo quản theo yêu cầu.
Quá trình này đảm bảo rằng sản phẩm được đông lạnh hiệu quả, giữ nguyên chất lượng và độ tươi ngon.
Xem thêm: Tủ đông mềm là gì? Tủ đông mềm công nghiệp
Lợi ích kinh tế tủ đông tiếp xúc
Tủ đông tiếp xúc mang lại nhiều lợi ích kinh tế cho doanh nghiệp:
Giảm chi phí bảo quản:
Tủ giúp bảo quản thực phẩm lâu dài, giảm thiểu tổn thất do hư hỏng sản phẩm.
Tăng hiệu quả sản xuất:
Quy trình cấp đông nhanh và liên tục giúp cải thiện năng suất và giảm thời gian sản xuất.
Cải thiện chất lượng sản phẩm:
Sản phẩm sau khi cấp đông và rã đông vẫn giữ được chất lượng, đáp ứng yêu cầu khắt khe của thị trường.
Ứng dụng tủ cấp đông tiếp xúc
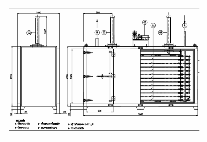
Tủ cấp đông tiếp xúc được thiết kế với nhiều tấm lắc cấp đông bên trong, cho phép điều chỉnh khoảng cách giữa các tấm từ 50 đến 105mm nhờ hệ thống ben thủy lực. Tủ hoạt động bằng cách lấy nhiệt từ cả mặt trên và dưới của khay, đảm bảo quá trình đông lạnh diễn ra hiệu quả. Sau khi hoàn tất, nhiệt độ trung tâm của sản phẩm phải đạt ít nhất -18˚C.
Với vỏ ngoài được làm từ inox chống gỉ, tủ cấp đông tiếp xúc thường được sử dụng để đông lạnh các sản phẩm dạng block, bánh hoặc nguyên liệu. Tủ này đặc biệt hiệu quả trong việc đông lạnh tôm block và các khay chứa nước, với mỗi block sản phẩm thường có khối lượng khoảng 2kg.
Xem thêm: Các loại tủ cấp đông công nghiệp chất lượng cao
Cung cấp thiết bị - lắp đặt hệ thống cấp đông IQF tại Yong-sung
Yongsung System Vina tự hào là đơn vị cung cấp và lắp đặt hệ thống cấp đông IQF hàng đầu tại Việt Nam. Hệ thống IQF Yong-sung được ứng dụng phổ biến trong ngành chế biến thực phẩm, giúp giữ trọn vẹn chất lượng, hương vị và giá trị dinh dưỡng của sản phẩm sau khi cấp đông.
Uy Tín:
Yongsung System Vina tự hào là đại diện chính thức của Yongsung Hàn Quốc tại Việt Nam. Với hệ thống IQF của Yongsung đang chiếm đến 80% thị trường nội địa, chúng tôi đã khẳng định được uy tín và vị thế trong ngành.
Chất Lượng:
Chúng tôi cam kết cung cấp hệ thống IQF Yong-sung với chất lượng cao và giá cả cạnh tranh, đáp ứng nhu cầu của khách hàng.
Dịch Vụ:
Yongsung cam kết mang đến cho khách hàng những sản phẩm và dịch vụ tốt nhất, cùng với các chính sách hậu mãi đảm bảo quyền lợi cho quý khách.
Kinh Nghiệm:
Hệ thống IQF của Yongsung đã có mặt tại nhiều nhà máy lớn tại Việt Nam, bao gồm CJ Foods Cầu Tre, H&Foseca (nay thuộc sở hữu của TH True Foods), F-One Global Food, CJ Bánh Ngọt, và Golden Gate Foods.
Yong-sung không chỉ là một nhà cung cấp thiết bị mà còn là đối tác chiến lược trong việc nâng cao chất lượng sản phẩm cho ngành công nghiệp thực phẩm. Với cam kết mang lại giải pháp tối ưu hóa quy trình sản xuất, Yong-sung sẽ là lựa chọn hoàn hảo cho nhu cầu bảo quản thực phẩm của bạn. Đến với Yongsung, khách hàng sẽ được tư vấn giải pháp tủ đông tối ưu và cải tiến quy trình sản xuất. Hãy liên hệ ngay với chúng tôi qua hotline để nhận được tư vấn và báo giá nhanh chóng!




CÔNG TY TNHH YONGSUNG SYSTEM VINA
Địa chỉ: Số 42, Đường số 2, khu Cư Xá Điện Lực, Phường Thủ Đức, Thành phố Hồ Chí Minh, Việt Nam.
Địa chỉ nhà máy: YongSung Vina Factory, Đường Khánh Bình 10, Phường Tân Hiệp, Thành Phố Hồ Chí Minh, Việt Nam.
Mã số thuế: 0317936990
Phone: 0274.2211.106
Hotline 1: 0967 699 996 (Mr.Ruy) - Hotline 2: 0869 186 492 (Mr.Hậu)
Email: Sales@yongsungvina.com.vn





Xem thêm